Contentor sanitário 3×6 – 6 duches, 2 lavatórios, esquentador de 300 litros
6,400.00€
Informações do Produto
Descrição Detalhada:
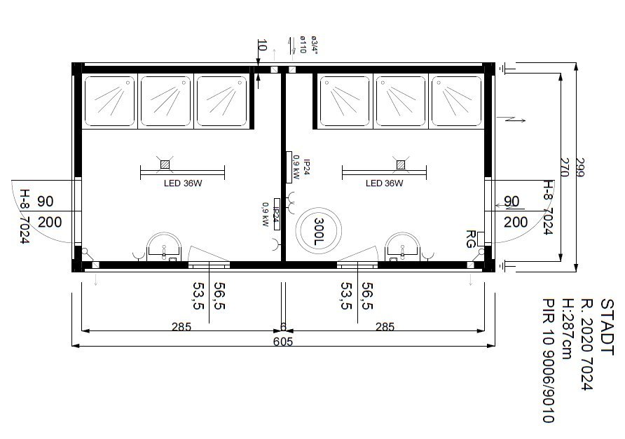
O contentor sanitário 3×6 é a solução perfeita para estaleiros de construção, acampamentos e áreas que exijam infraestruturas sanitárias temporárias. Possui um sistema elétrico completo, várias casas de banho e espaço otimizado para uma utilização fácil e confortável.
Dimensões:
Largura: 2,44 m
Comprimento: 6,06 m
Altura: 2,80 m
Área total: 14,79 m²
Características:
Condição: Bom estado, usado
Portas: 1 porta na parede curta, 1 porta na parede longa, porta standard
Janelas: 2 janelas (parede baixa, janelas abertas, com portadas)
Equipamento incluído:
6 chuveiros
2 pias
1 vaso sanitário
1 urinol
1 máquina de lavar roupa
Aquecedor de água de 300 litros
Estrutura metálica robusta
Instalação elétrica completa
Este contentor sanitário oferece um excelente conforto e uma grande capacidade, ideal para ambientes que exijam instalações robustas e bem equipadas.
